Osiedle budynków dwulokalowych w Skrzeszewie
Poznaj inwestycjęOsiedle budynków dwulokalowych w Skrzeszewie
Osiedle budynków mieszkalnych jednorodzinnych dwulokalowych w Skrzeszewie to nasza najnowsza Inwestycja. Rozpoczęcie budowy nastąpiło w kwietniu 2022r.
Projektowanych jest 8 budynków połączonych pomieszczeniami gospodarczymi oraz 2 budynki połączone garażami.
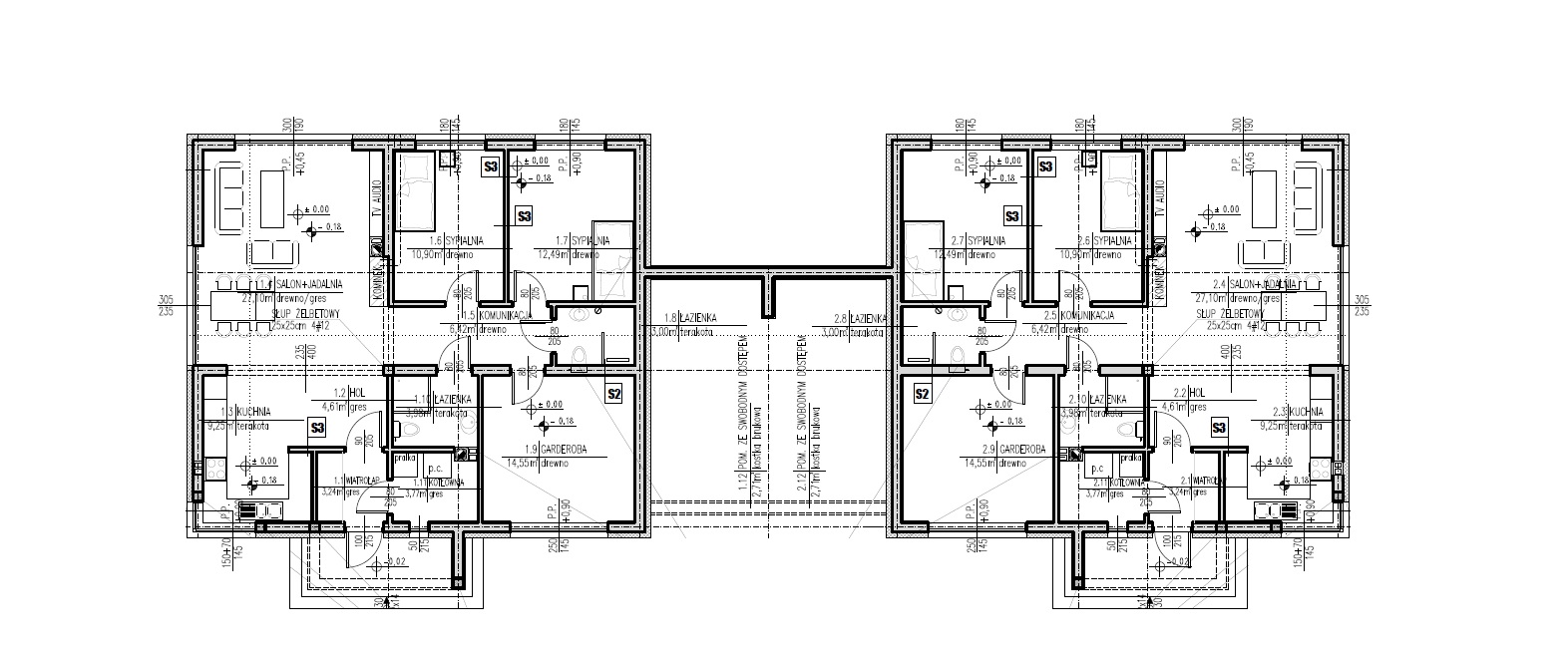
Budynki numer 1-4, 7-10 w cenie 600.000,00 złotych składają się z dwóch lokali połączonymi pomieszczeniem gospodarczym ze swobodnym dostępem.
Każdy z nich posiada 102,02 m2 powierzchni użytkowej, w skład której wchodzą:
Pomieszczenia
Domy / Projekty
Budynki numer 1-4, 7-10 w cenie 600.000,00 złotych składają się z dwóch lokali połączonymi pomieszczeniem gospodarczym ze swobodnym dostępem.
Każdy z nich posiada 102,02 m2 powierzchni użytkowej, w skład której wchodzą:
- wiatrołap: 3,24 m2
- kuchnia: 9,25 m2
- salon+ jadalnia: 27,10 m2
- hol: 4,61 m2
- sypialnia 1: 10,90 m2
- sypialnia 2: 12,49 m2
- sypialnia 3: 14,55 m2
- łazienka 1: 3,00 m2
- łazienka 2: 3,98 m2
- komunikacja: 6,42 m2
- pomieszczenie gospodarcze: 2,71 m2
- kotłownia: 3,77 m2
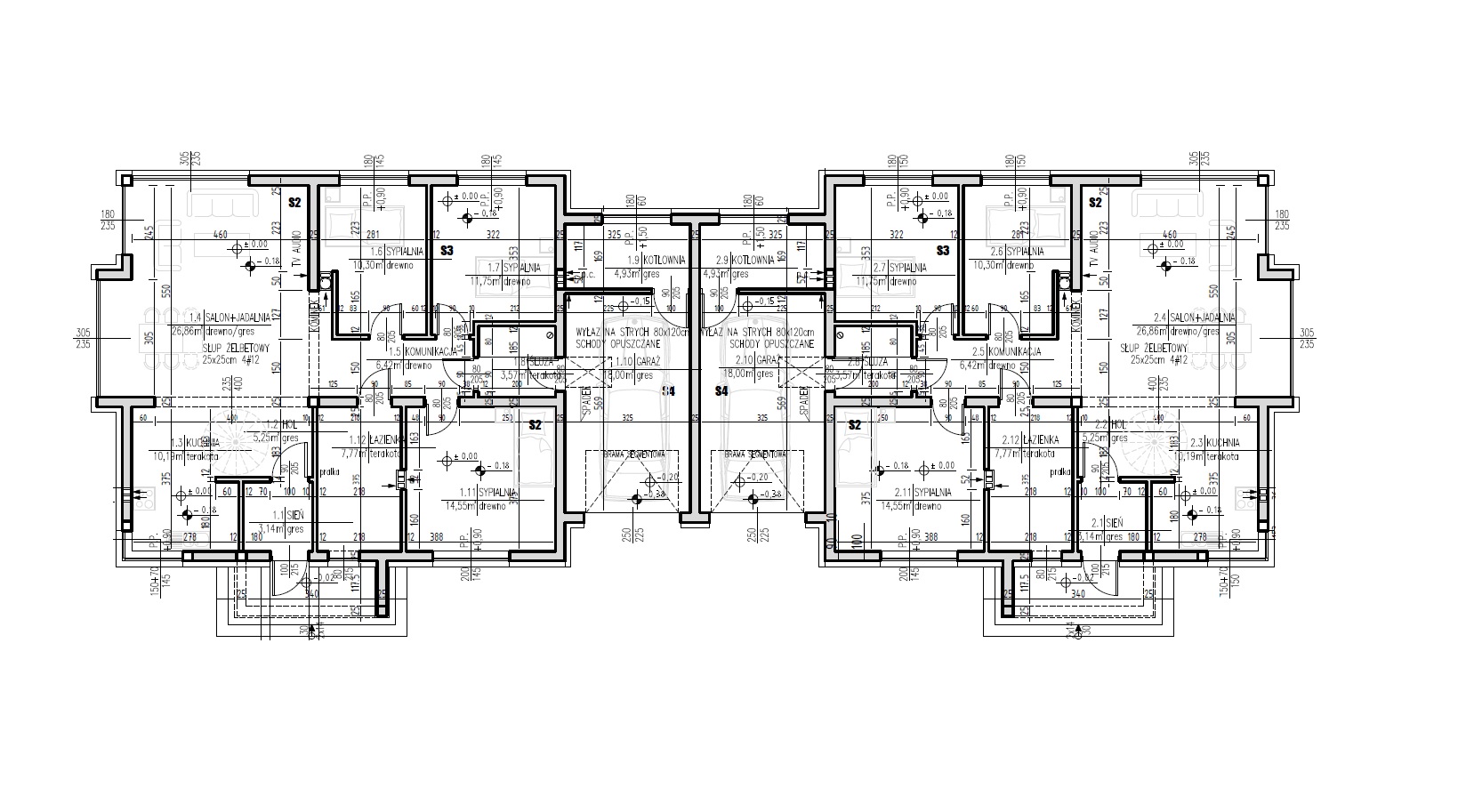
Budynki numer 5 i 6 w cenie 700.000,00-750.000,00 złotych składają się z dwóch lokali połączonych garażami.
Każdy z nich posiada 122,73 m2 powierzchni użytkowej, w skład której wchodzą:
- wiatrołap: 3,14 m2
- kuchnia: 10,19 m2
- salon+ jadalnia: 26,86 m2
- hol: 5,25 m2
- sypialnia 1: 10,30 m2
- sypialnia 2: 11,75 m2
- sypialnia 3: 14,55 m2
- łazienka 1: 7,77 m2
- śluza: 3,57 m2
- komunikacja: 6,42 m2
- garaż: 18,00 m2
- kotłownia: 4,93 m2
Plan osiedla