Osiedle budynków dwulokalowych w Topolinie

Prywatność i kameralność

Poznaj inwestycję
SPRZEDANE

Osiedle budynków dwulokalowych
w Topolinie

Rozpoczynamy budowę II etapu osiedla w Topolinie !

Prywatność i kameralność – to dwie z wielu cech opisujących naszą inwestycję.

W ofercie znajduje się 5 z 6 budynków jednorodzinnych w zabudowie dwulokalowej. Budynki zlokalizowane na działkach od 850 do 1250 m2.

Budynki wykonane z najwyższej jakości materiałów budowlanych od renomowanych producentów.

Cena: 530.000,00- 580.000,00 zł

Pomieszczenia

3 sypialnie
2 łazienki

Domy / Projekty

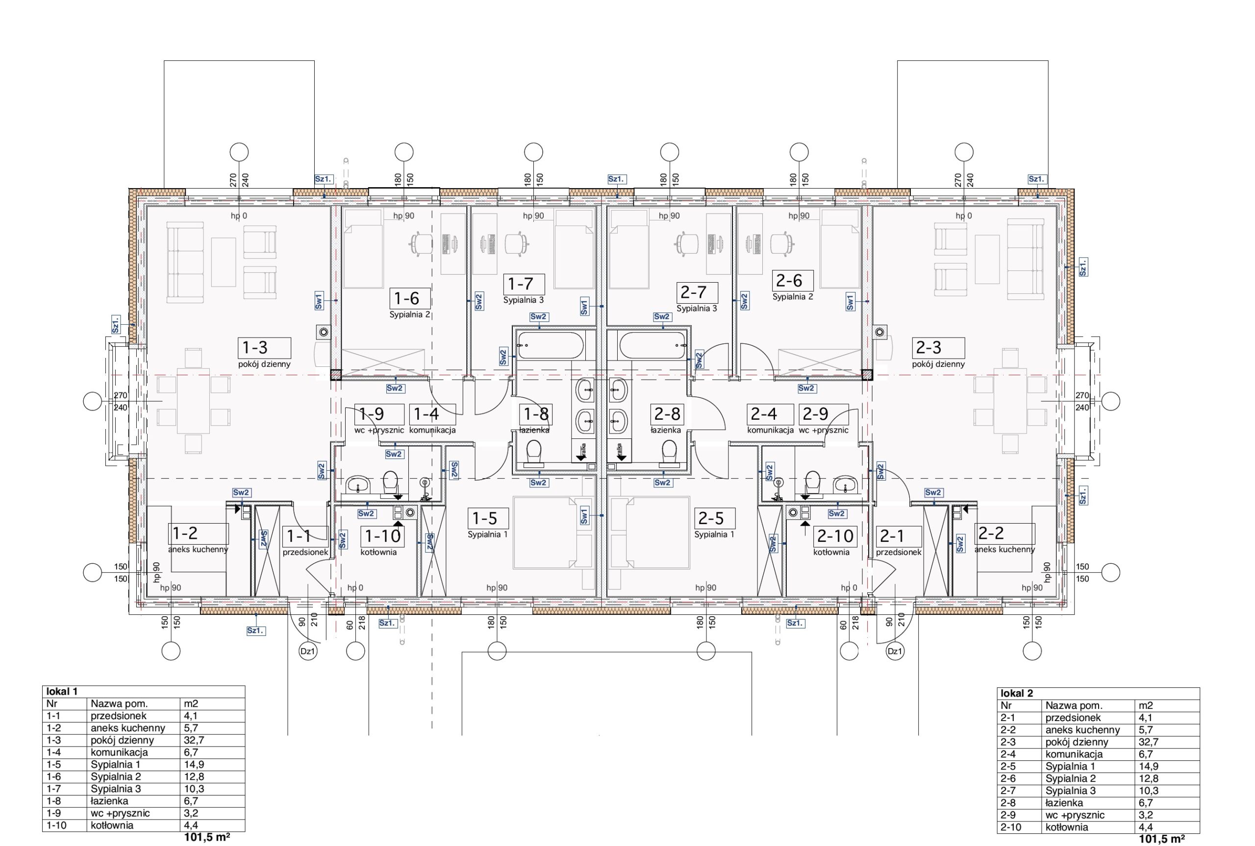
Każdy lokal składa się z:

  • Przedsionka – 4,10 m2
  • Aneksu kuchennego – 5,70 m2
  • Pokoju dziennego – 32,70 m2
  • Komunikacji – 6,70 m2
  • Sypialni 1 – 14,90 m2
  • Sypialni 2 – 12,80 m2
  • Sypialni 3 – 10,30 m2
  • Łazienki – 6,70 m2
  • WC + prysznic – 3,20 m2
  • Kotłowni – 4,40 m2

Łącznie lokale posiadają 101,5 m2 powierzchni użytkowej.

Plan osiedla

Plan osiedla
Powrót na stronę główną